• Home
  • Over ons
  • Diensten
    • Visualisatie en animatie
      Bouwbesluittoetsing
      Vernieuwbouwplan
      EPG / EPC Berekening
      MPG Berekening
      Bouwkundig Tekenwerk
      Bouwkundig Ontwerp
      Bouwbegeleiding / projectmanagement
  • Portfolio
  • Informatie
  • Contact

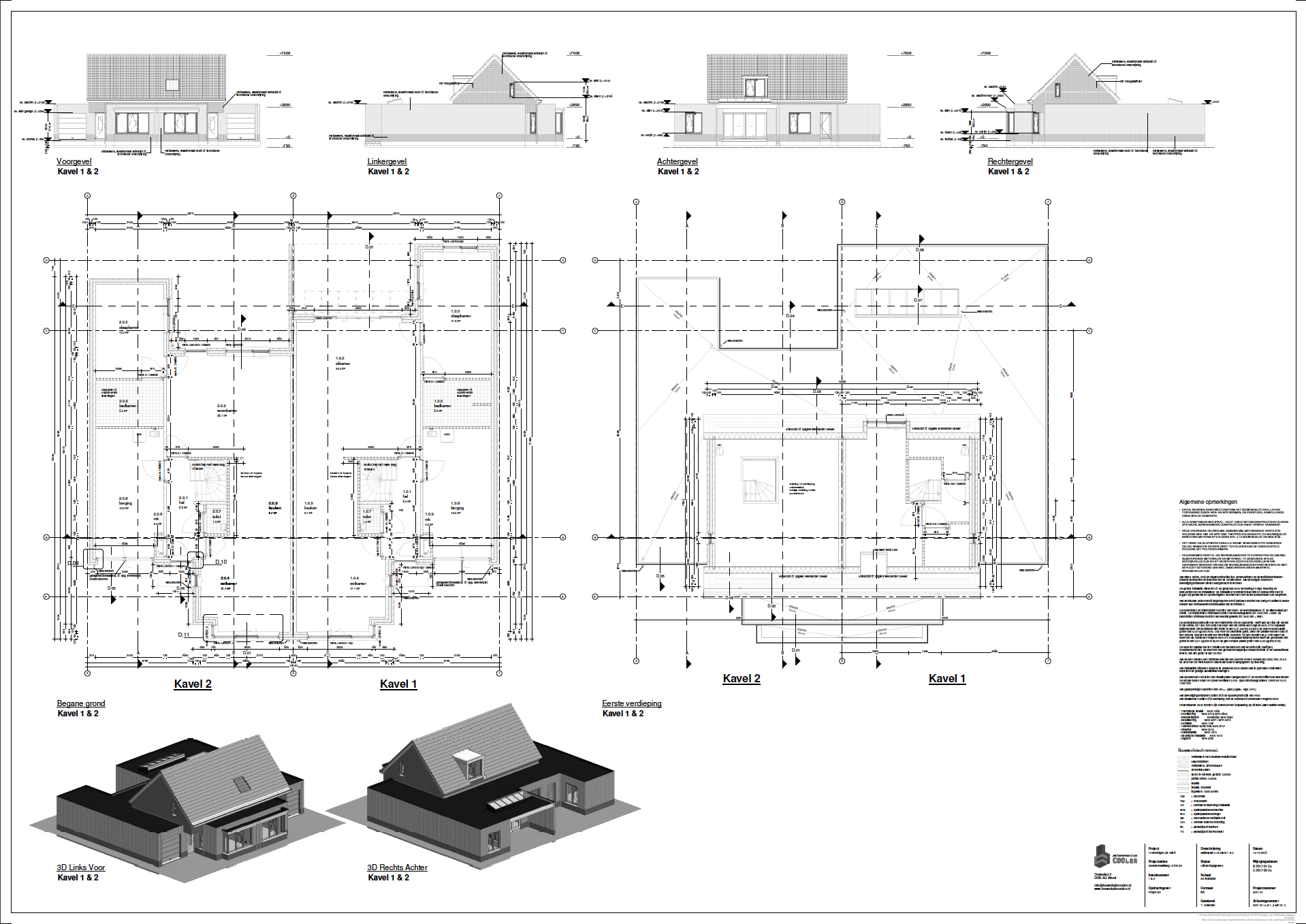
Bouwkundig tekenwerk.

Hierbij enkele voorbeelden van door ons gerealiseerd tekenwerk. Wij verzorgen ook jouw tekenwerk tot in de puntjes.
Bouwkundig tekenwerk.
Bouwkundig tekenwerk.
Bouwkundig tekenwerk.
Bouwkundig tekenwerk.

Terug naar portfolio

Contact

  • BEL MET ONS
  • MAIL ONS
  • IK WIL TERUG GEBELD WORDEN
  • Visualisatie en animatie
  • Bouwkundig Tekenwerk
  • Bouwkundig Ontwerp

Visualisatie en animatie

Bij nieuwbouw kunnen de bouwtekeningen soms als onoverzichtelijk worden beschouwd of niet goed worden gelezen door u als opdrachtgever. Het is belangrijk om duidelijk te hebben hoe de nieuwbouw of verbouwing er uiteindelijk komt uit te zien. 
LEES MEER

Bouwkundig Tekenwerk

Bouwkundig tekenwerk kan op vele manieren in vele fases, van concept ontwerp tot werktekening in 2D en 3D. LEES MEER

Bouwkundig Ontwerp

Een passend ontwerp is het belangrijkste wanneer je gaat bouwen, het moet niet alleen mooi zijn maar ook functioneel maar ook duurzaam en energiezuinig. LEES MEER

Diensten

Visualisatie en animatie
Bouwbesluittoetsing
Vernieuwbouwplan
EPG / EPC Berekening
MPG Berekening
Bouwkundig Tekenwerk
Bouwkundig Ontwerp
Bouwbegeleiding / projectmanagement

Contact

Schoutlaan 22a Nederland

6002AE TEL: +31 495 204900

Weert KVK: Roermond 58559361

Privacyverklaring


Bel ons
Mail ons

‹ › ×